KTS. Lê Cao Anh và cộng sự
GIẢI ĐỒNG – Giải thưởng Kiến trúc Quốc gia 2021
Thể loại Kiến trúc nhà ở – Hạng mục Nhà ở nông thôn

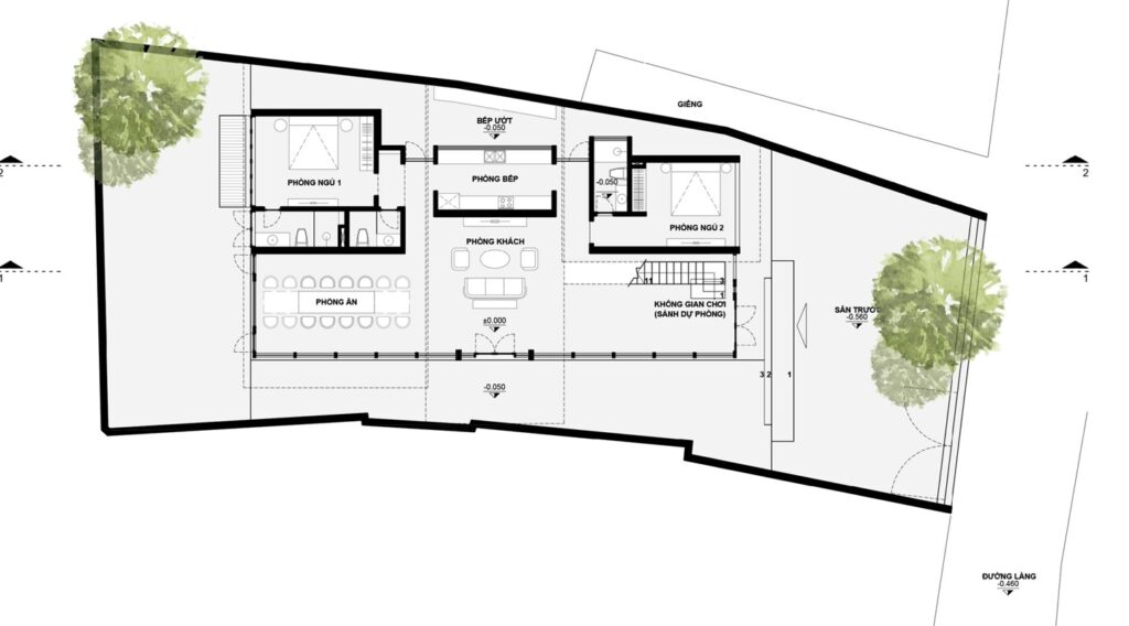
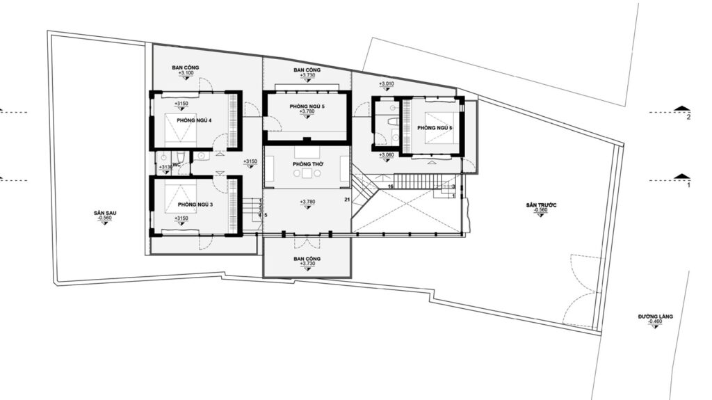
Kiến trúc tổng thể hài hoà với cảnh quan, phương án chia nhỏ hệ mái thành các dốc nhỏ hoà nhập và gần gũi với kiến trúc nhà truyền thống. Không gian sinh hoạt trong nhà đầm ấm và tiện nghi cho đại gia đình nhiều thế hệ. Có những nét mới, cải biến của nhà ở xưa vào thiết kế: khoảng thông tầng, bếp kín, bếp ướt, phòng ngủ khép kín nhưng vẫn đâu đó giữ được tinh thần của ngôi nhà dân gian.
Nhận xét của Hội đồng Giải thưởng Kiến trúc Quốc gia 2021.


KTS Kim Anh – Viện Kiến trúc.